Porzione di bifamiliare in vendita

Laterina, Via Luigi Pirandello - Casanuova
€ 190.000
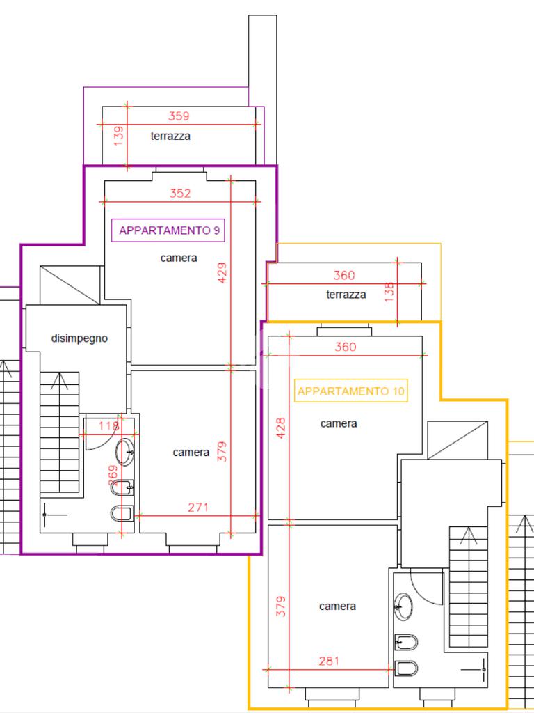
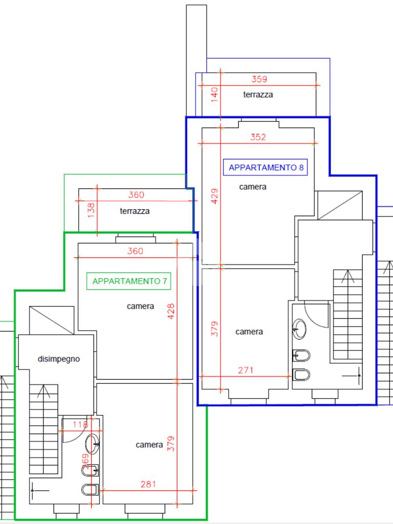
4 locali 4 locali
90 Mq 90 Mq
2 bagni 2 bagni

Porzione di bifamiliare in vendita

Laterina, Via Luigi Pirandello - Casanuova

Descrizione annuncio

LATERINA PERGINE VALDARNO - PIADICHENA

IMMOBILI GREEN - CLASSE ENRGETICA A

In posizione panoramica e immerso nel verde proponiamo terratetti di nuova ristrutturazione con ingresso indipendente e giardino.

Gli immobili si sviluppano su due livelli, al piano terra con zona giorno open-space, primo bagno.

Tramite scala sia interna che esterna si accede al piano superiore dove abbiamo la zona notte con 2 camere, balcone ed ulteriore bagno.

Gli immobili, realizzati con elevati standard qualitativi e massima attenzione al risparmio energetico, saranno dotati di pompe di calore caldo/freddo Samsung di ultima generazione, gres porcellanato a scelta del cliente, infissi in PVC con triplo vetro e serrande termiche.

Prezzo di acquisto comprensivo di onorario atto di compravendita.

Acquistabile con mutuo GREEN a tasso agevolato.

Consegna prevista entro il 30/09/2026.

Soluzione ideale per chi desidera comfort, efficienza energetica e qualità costruttiva in un contesto moderno e tranquillo.

Mostra tutto

Nelle vicinanze

Trasporto pubblico Trasporto pubblico
Laterina
Laterina
2,1 Km
Molo di Bandella
1,1 Km
Scuole Scuole
Scuole
1,6 Km
Ristoranti Ristoranti
lo Strettoio
330 m
Mostra tutto

Caratteristiche

Rif.:
61186294
Piano:
2 di 2 (Piano su più livelli)
Posti auto:
1
Balconi:
1
Camere da letto:
2
Arredamento:
Assente
Mostra tutto
Prezzo Prezzo
€ 190.000
Rata mutuo Rata mutuo
€ 896 / mese
Spese annue Spese annue
€ 0
Proponi il tuo prezzoProponi il tuo prezzo

Classe Energetica

A1
A1
A1
A1
A1
A1
A1
A1
A1
EP globale non rinnovabile:
74.30 kW h/m² anno
EP globale rinnovabile:
1.30 kW h/m² anno
EP invernale del fabbricato:
EP estiva del fabbricato:
Anno di costruzione:
2010
Riscaldamento:
Autonomo
Tipo impianto:
Ad aria
Tipo alimentazione:
Aria

Ti interessa visionare l'immobile?

Fissa un appuntamento  Fissa un appuntamento

Richiedi informazioni

Clicca su Leggi per aprire l'informativa
* Questi campi sono obbligatori

Calcola il tuo mutuo

Semplice e senza impegno
Anticipo

( % )
Mutuo

( % )

pochi semplici passi

inserisci i tuoi dati
Questionario completato
Grazie per aver richiesto un appuntamento senza impegno con un nostro Consulente del Credito e Assicurativo.

Hai inserito correttamente tutti i dati necessari e a breve riceverai una e-mail con un link da convalidare per inviare i tuoi dati.
Affiliato
Studio San Giovanni Valdarno Sas
Viale Antonio Gramsci, 7 52027 San Giovanni Valdarno (AR)
Viale Antonio Gramsci, 7 52027 San Giovanni Valdarno (AR)
Zona: San Giovanni Valdarno
Mostra su mappa
Affiliato
Studio San Giovanni Valdarno Sas
Viale Antonio Gramsci, 7 52027 San Giovanni Valdarno (AR)

2026 Tecnocasa Franchising S.p.A. - P. IVA 08365160152 - Via Monte Bianco 60/A 20089 Rozzano (MI). Ogni agenzia ha un proprio titolare ed è autonoma. Privacy policy | Policy utilizzo | Cookie policy